1 Bedroom Flat to rent at Ottawa Court, Broxbourne EN10
About this property We are pleased to offer this third…
£1,350 pcm
Real Estate in the UK
Real Estate in the UK
Norton Road, Leyton, London Borough of Waltham Forest, Greater London, England, E10 7LQ, United Kingdom
For Sale
£595,000










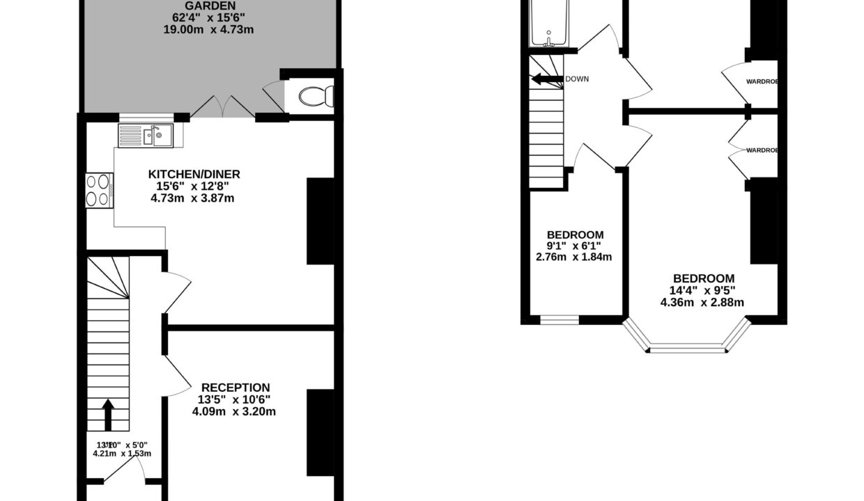
This mid-terraced Three-Bedroom House is ideally located on the popular Norton Road, E10, offering well-balanced accommodation and excellent scope for families, first-time buyers, or those looking to add value.
The ground floor comprises a Large Front Reception room, providing a bright and comfortable living space, alongside a Spacious Rear Kitchen/Diner with direct access to the Private Rear Garden — ideal for family life and entertaining. The garden further benefits from a convenient External W.C, a practical feature often sought after in traditional homes of this style.
To the first floor, the property offers Three Well-Proportioned Bedrooms, served by a Three-Piece Family Bathroom Suite. Additional benefits include Double Glazing, Gas Central Heating, and excellent development potential, with the possibility of a Rear extension and Loft conversion (STPP), allowing purchasers to significantly enhance the internal space and long-term value.
Norton Road is well positioned within Leyton, offering easy access to a range of local shops, cafés, and amenities, as well as open green spaces such as Coronation Gardens and nearby parks. The property is also conveniently located close to the vibrant Walthamstow Market, one of Europe’s longest outdoor markets, offering a wide variety of food stalls, local produce, and independent retailers.
Transport links are excellent, with Leyton Underground Station and Walthamstow Central Underground Station both within reach, providing fast connections into Stratford, the City, and the West End. A variety of bus routes also serve the area.
The property is well suited to families, being close to a selection of well-regarded local Primary and Secondary schools, further enhancing its appeal as a long-term home.
A fantastic opportunity to acquire a well-located house with outdoor space and strong future potential in a sought-after E10 location.
EPC Rating – C
Council Tax Band – C
Tenure – Freehold
Further Information
Conservation Area: No
Flood Risk: Very Low
Mobile Coverage: EE / Three / Vodafone / O2
Broadband: Basic (7 Mbps) / Superfast (70 Mbps) / Ultrafast (1000 Mbps)
Satellite/Fibre TV: BT / Sky / Virgin
About this property We are pleased to offer this third…
£1,350 pcm
About this property We are delighted to present this beautifully…
£650,000
1 Bedroom Flat for Sale at Streamside Close, Edmonton N9